GLENHAVEN
House
IF LOCATION IS IMPORTANT
An opportunity has presented itself to state your claim on a classic Hills lifestyle
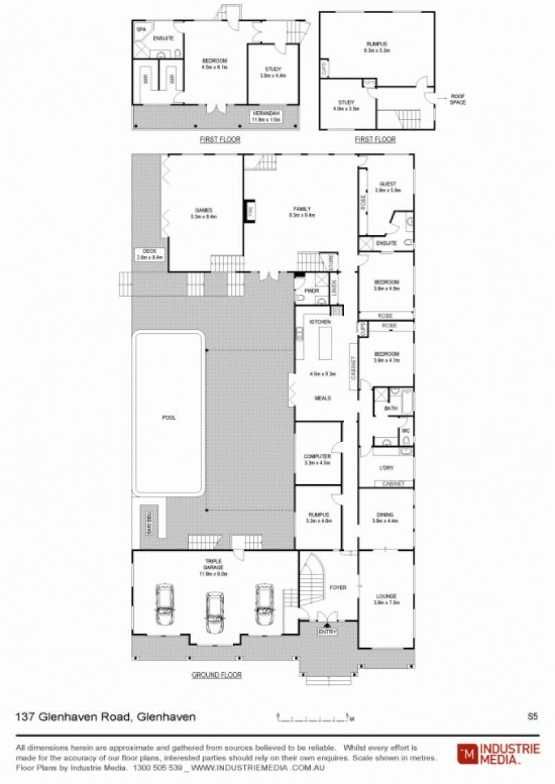
Modern 6/8 bedroom home, set back from the road, behind auto gated entry
Long sealed driveway, and manicured gardens lead to the privately set home in the middle of 5 acres
Multitude of formal and informal living areas include, formal lounge room, formal dining, meals, 2 x office/study, kids TV room, family room, home cinema room, rumpus/bar and gymnasium
Large granite kitchen suitable for the fussiest chef, yet practical enough for the family
In-ground concrete swimming pool and spa, positioned as a centre piece to this sprawling estate
Triple auto garage with internal access plus, 2 huge sheds - 1 x brick shed suitable for stables/dogs etc with 2 storage rooms, feed room, 3 roller door entry doors, drive through access 1 x colorbond shed approximately 9m x 9m, would suit a car collector, horse enthusiast, kennels or storage for the home business
Many many more features to see and appreciate, when you inspect this property
Situated in leafy Glenhaven, and within minutes to many schools in the Hills Shire, and local shops. 5 minutes drive to Castle Hill and within 40 minutes to Sydney CBD
Enjoy a truly magnificent sunset, or watch a storm roll in from the west, from many of your vantage points. Blue Mountain views across the rural lifestyle, capture a really unique location
Modern 6/8 bedroom home, set back from the road, behind auto gated entry
Long sealed driveway, and manicured gardens lead to the privately set home in the middle of 5 acres
Multitude of formal and informal living areas include, formal lounge room, formal dining, meals, 2 x office/study, kids TV room, family room, home cinema room, rumpus/bar and gymnasium
Large granite kitchen suitable for the fussiest chef, yet practical enough for the family
In-ground concrete swimming pool and spa, positioned as a centre piece to this sprawling estate
Triple auto garage with internal access plus, 2 huge sheds - 1 x brick shed suitable for stables/dogs etc with 2 storage rooms, feed room, 3 roller door entry doors, drive through access 1 x colorbond shed approximately 9m x 9m, would suit a car collector, horse enthusiast, kennels or storage for the home business
Many many more features to see and appreciate, when you inspect this property
Situated in leafy Glenhaven, and within minutes to many schools in the Hills Shire, and local shops. 5 minutes drive to Castle Hill and within 40 minutes to Sydney CBD
Enjoy a truly magnificent sunset, or watch a storm roll in from the west, from many of your vantage points. Blue Mountain views across the rural lifestyle, capture a really unique location
