73 Porters Road, KENTHURST
House
ULTIMATE RURAL LIFESTYLE RETREAT
2.02ha (5 acres) of magnificent gardens, open grassed areas and picturesque lilly filled dam.
Sought after close in location with 81m frontage and auto security gates
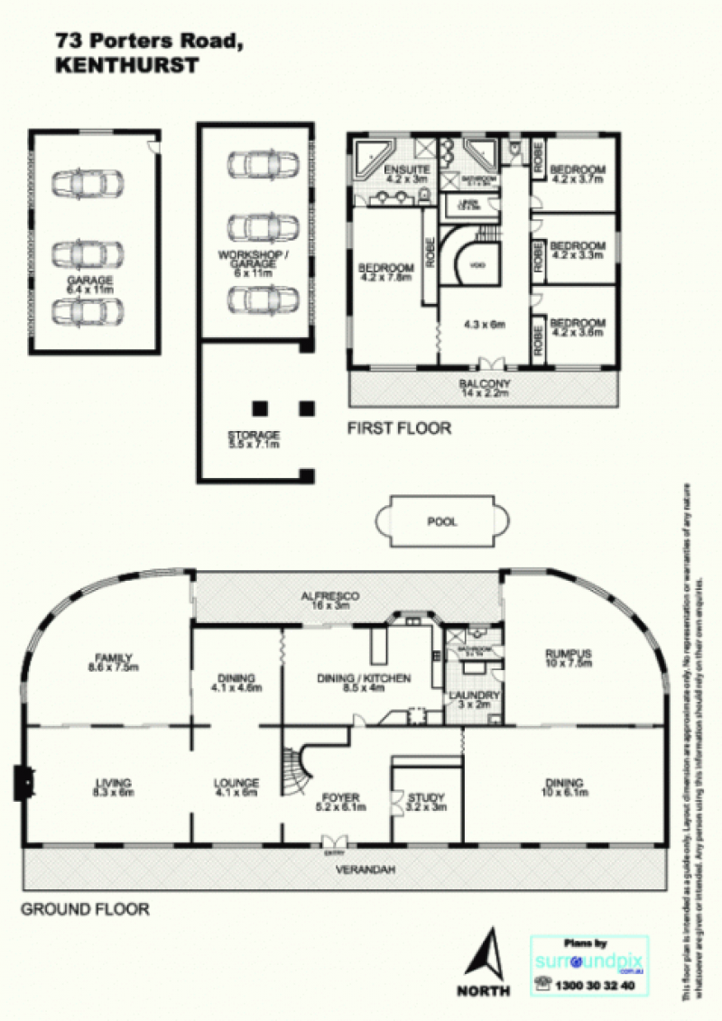
Sealed treeline driveway to triple garage and large storage areas
Full brick construction consists of massive formal and informal living spaces
Rear facing north floods the entire kitchen and meals with natural light
Feature fountain/pond complete with colourful karp fish
Oversized inground pool surrounded by established gardens
Separate outdoor shower and toilet plus covered BBQ kitchen area
Guarded by fu dog temple lions, your future investment is protected
Sought after close in location with 81m frontage and auto security gates
Sealed treeline driveway to triple garage and large storage areas
Full brick construction consists of massive formal and informal living spaces
Rear facing north floods the entire kitchen and meals with natural light
Feature fountain/pond complete with colourful karp fish
Oversized inground pool surrounded by established gardens
Separate outdoor shower and toilet plus covered BBQ kitchen area
Guarded by fu dog temple lions, your future investment is protected
